Бизнес-центр, 400 м²

Липецкая область, Елец, Юбилейная улица, 19

390 000 руб. / год

975 руб./м²

Описание Объект №24

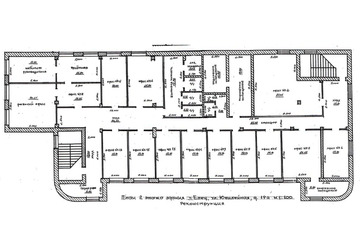
Сдается в аренду новое офисное помещение (после ремонта) на 2 этаже по адресу г. Елец, ул. Юбилейная 19 А, общей площадью 394 м2. Наличие двух отдельных входов с улицы, наличие коммуникаций на всем этаже, интернет, вода, канализация, отличный ремонт, удобное местоположение (рядом крупный городской микрорайон, остановки общественного транспорта, федеральная трасса м4). Доступность выезда в направлении Орла, Москвы, Воронежа (5 минут). Центральное отопление.

  • Этаж :

  • Высота потолков :

  • Вход :

  • Эл. мощность кВт :

  • Тип здания :

  • Все здание

  • 2.9

  • Отдельный

  • 5

  • Здание свободного назначения

  • Этажность :

  • Доступ на объект :

  • Кол-во комнат :

  • Площадь :

  • 3

  • Ограниченный

  • 9 и более

  • 400 м²

Дополнительная информация

Карта Елец, Юбилейная улица, 19