Помещение своб.назн., 394 м², 2/3 эт.

Липецкая область, Елец, Юбилейная улица, 19А

198 000 руб. / мес.

503 руб./м²
Помещение своб.назн., 394 м², 2/3 эт.

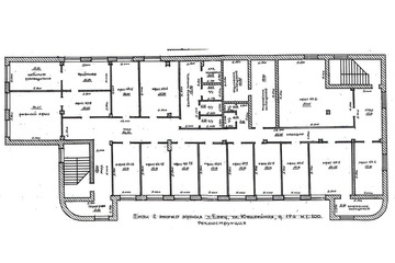
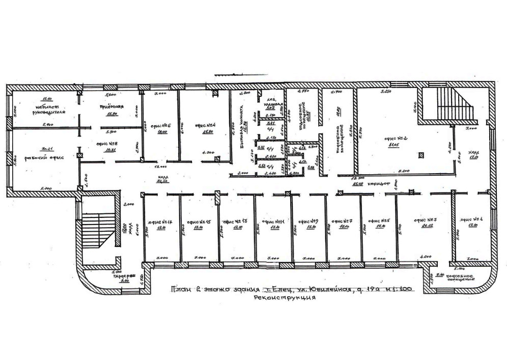
Описание Объект №28

Сдается в аренду новое офисное помещение (после ремонта) на 2 этаже по адресу г. Елец, ул. Юбилейная 19 А, общей площадью 394 м2. Наличие двух отдельных входов с улицы, наличие коммуникаций на всем этаже, интернет, вода, канализация, отличный ремонт, удобное местоположение (рядом крупный городской микрорайон, остановки общественного транспорта, федеральная трасса м4). Доступность выезда в направлении Орла, Москвы, Воронежа (5 минут). Центральное отопление.

  • Этаж :

  • Высота потолков :

  • Вход :

  • Площадь :

  • 2

  • 2.9

  • Отдельный

  • 394 м²

  • Этажность :

  • Доступ на объект :

  • Кол-во комнат :

  • Тип здания :

  • 3

  • Ограниченный

  • 9 и более

  • Здание свободного назначения

Карта Елец, Юбилейная улица, 19А